Проект каркасного дома Laguna
Общая площадь 90
Технология Каркасная
Количество этажей 1,5
Количество спален 3
Количество с/у 1
Наличие сауны / бани нет
Гараж нет
Форма дома Многоугольник
Тип крыши Односкатная
Стиль дома Современный стиль, Скандинавский стиль
Срок сборки 90 дней под ключ
2 898 000 руб. под ключ дачный дом
4 284 000 руб. под ключ для ПМЖ
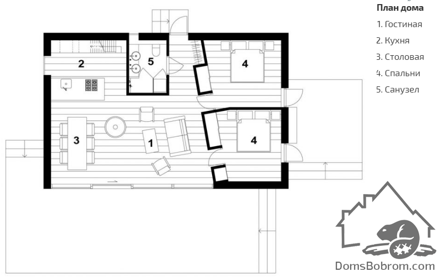
Дом Laguna построен по проекту стокгольмских архитекторов Матса Эдлунда и Хенриэтты Палмер и своими очертаниями напоминает палатку. У дома простая форма с односкатной крышей и слегка наклонной стеной. Внутри светло и просторно. Гостиная, кухня, столовая и антресоль спроектированы в той части дома, где кровельный скат набирает максимальную высоту, спальни находятся в зоне с невысокими потолками. Просторные комнаты не перегружены предметами, но в доме есть колоритные предметы мебели, выполненные из дерева.
К дому Laguna пристроена открытая терраса с деревянным настилом.
Стоимость строительства дома по проекту «Проект каркасного дома Laguna» для дома постоянного проживания (ПМЖ)
ЗАКРЫТЫЙ КОНТУР. ВНЕШНЯЯ ОТДЕЛКА
Строительство можно продолжить позднее.
- Перепланировка дома
- Полный проект дома
- Доставка до 50км от МКАД
- Обеспечение туалетом и бытовкой на объекте
- Свайно-винтовой фундамент
- Обвязка:Гидроизоляция по фундаменту, устройство нижней обвязки из антисептированного пакета досок 200x50x3.
- Каркас:Каркас дома из сухой строганой доски камерной сушки: силовой каркас, хедеры, ригеля, обвязки каркаса, стропильная система, перекрытия, перегородки.
- Окна, дверь:Окна/балконные двери белые металлопластиковые с двухкамерным стеклопакетом. Профиль Brusbox. Входная дверь металлическая с теплоразрывом.
- Кровельная система:Кровельное покрытие фальцевая кровля/металлочерепица с комплектом фасонных изделий, гидро ветрозащитной мембраной, обрешетка, контр обрешетка
- Внешняя отделка:Доска / Цементно-стружечная плита (ЦСП), оконные отливы, наличники окон и дверей.
- Водосточная система
- Утепление дома:Теплоизоляция полов и потолков утеплителем Rockwool 250 мм, теплоизоляция стен утеплителем Rockwool 200 мм, шумоизоляция перегородок Rockwool 100мм. Пароизоляционные мембраны проклеиваются, ветро-влагозащитные мембраны монтируются внахлест
- Напольное покрытие:Фанера ФК, ЦСП в мокрых зонах
- Внутренняя отделка:Внутренняя отделка стен и потолков гипсокартоном. Межкомнатные двери.
- Напольное покрытие террас, балконов:Устройстро полов террас и балконов выполняется из доски 25 мм
- Ограждения террас, балконов:Устройство ограждений террас и балконов по проекту
ТЕПЛЫЙ КОНТУР
Можно приступать к внутренней отделке дома.
- Перепланировка дома
- Полный проект дома
- Доставка до 50км от МКАД
- Обеспечение туалетом и бытовкой на объекте
- Свайно-винтовой фундамент
- Обвязка:Гидроизоляция по фундаменту, устройство нижней обвязки из антисептированного пакета досок 200x50x3.
- Каркас:Каркас дома из сухой строганой доски камерной сушки: силовой каркас, хедеры, ригеля, обвязки каркаса, стропильная система, перекрытия, перегородки.
- Окна, дверь:Окна/балконные двери белые металлопластиковые с двухкамерным стеклопакетом. Профиль Brusbox. Входная дверь металлическая с теплоразрывом.
- Кровельная система:Кровельное покрытие фальцевая кровля/металлочерепица с комплектом фасонных изделий, гидро ветрозащитной мембраной, обрешетка, контр обрешетка
- Внешняя отделка:Доска / Цементно-стружечная плита (ЦСП), оконные отливы, наличники окон и дверей.
- Водосточная система
- Утепление дома:Теплоизоляция полов и потолков утеплителем Rockwool 250 мм, теплоизоляция стен утеплителем Rockwool 200 мм, шумоизоляция перегородок Rockwool 100мм. Пароизоляционные мембраны проклеиваются, ветро-влагозащитные мембраны монтируются внахлест
- Напольное покрытие:Фанера ФК, ЦСП в мокрых зонах
- Внутренняя отделка:Внутренняя отделка стен и потолков гипсокартоном. Межкомнатные двери.
- Напольное покрытие террас, балконов:Устройстро полов террас и балконов выполняется из доски 25 мм
- Ограждения террас, балконов:Устройство ограждений террас и балконов по проекту
ВНУТРЕННЯЯ ОТДЕЛКА
Можно приступать к установке инженерных систем и чистовой отделке.
- Перепланировка дома
- Полный проект дома
- Доставка до 50км от МКАД
- Обеспечение туалетом и бытовкой на объекте
- Свайно-винтовой фундамент
- Обвязка:Гидроизоляция по фундаменту, устройство нижней обвязки из антисептированного пакета досок 200x50x3.
- Каркас:Каркас дома из сухой строганой доски камерной сушки: силовой каркас, хедеры, ригеля, обвязки каркаса, стропильная система, перекрытия, перегородки.
- Окна, дверь:Окна/балконные двери белые металлопластиковые с двухкамерным стеклопакетом. Профиль Brusbox. Входная дверь металлическая с теплоразрывом.
- Кровельная система:Кровельное покрытие фальцевая кровля/металлочерепица с комплектом фасонных изделий, гидро ветрозащитной мембраной, обрешетка, контр обрешетка
- Внешняя отделка:Доска / Цементно-стружечная плита (ЦСП), оконные отливы, наличники окон и дверей.
- Водосточная система
- Утепление дома:Теплоизоляция полов и потолков утеплителем Rockwool 250 мм, теплоизоляция стен утеплителем Rockwool 200 мм, шумоизоляция перегородок Rockwool 100мм. Пароизоляционные мембраны проклеиваются, ветро-влагозащитные мембраны монтируются внахлест
- Напольное покрытие:Фанера ФК, ЦСП в мокрых зонах
- Внутренняя отделка:Внутренняя отделка стен и потолков гипсокартоном. Межкомнатные двери.
- Напольное покрытие террас, балконов:Устройстро полов террас и балконов выполняется из доски 25 мм
- Ограждения террас, балконов:Устройство ограждений террас и балконов по проекту
Проекты той же площади
Проекты в стиле: Современный стиль, Скандинавский стиль
Архитектурный раздел
- Ведомость чертежей
- Общие указания
- Маркировочные планы этажей дома
- План кровли
- Кладочные планы этажей
- Спецификация перемычек
- Разрезы
- Спецификация заполнения проемов
- Экспликация полов
- Цокольный узел
- Кровельный узел
- Развертки вентиляционных шахт
- Сечения вентиляционных шахт
- Фасады
- Объемные виды дома или коттеджа
Конструктивный раздел*
- Ведомость чертежей
- Общие указания для строительства
- План котлована (траншей)
- Фундаменты, схема расположения
- Фундаменты, общий вид
- Фундаменты, схема расположения плитной части
- Фундаменты, схема расположения стеновой части
- Фундаменты, сечения дома
- Спецификация элементов фундамента
- Междуэтажное перекрытие коттеджа или дома
- Схема элементов перекрытия
- Схема расположения монолитного пояса
- Схема расположения чердачных балок
- Схема расположения стропил (для скатных кровель)
- Спецификация элементов стропил для строительства (для скатных кровель)
- Общий вид стропильной системы (для скатных кровель)
- Внутридомовая лестница (если разработана в проекте)
- Схема устройства входных групп
