Проект барнхауса Tilava
55 200 руб. Заказать проект
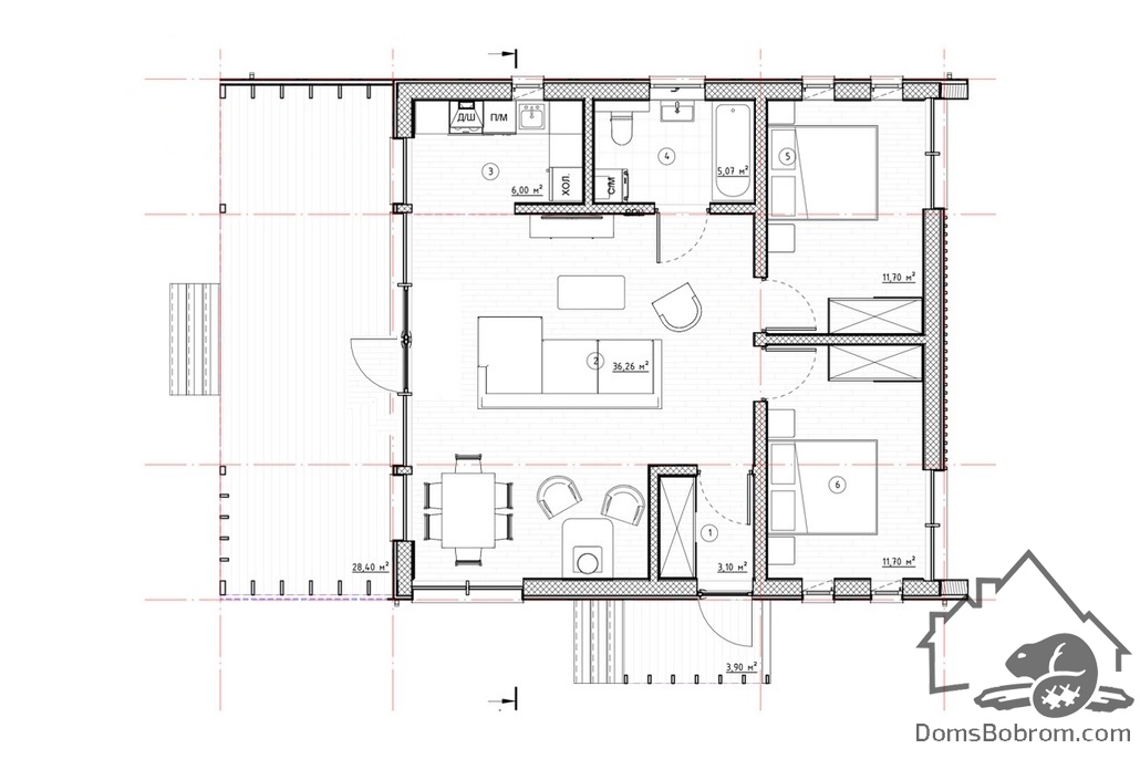
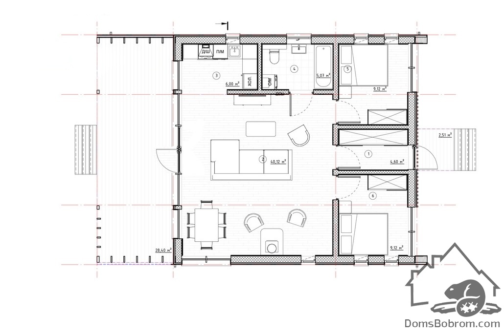
Общая площадь 92
Полезная площадь 48,6
Технология Каркасная
Количество этажей 1
Количество спален 2
Количество с/у 1
Наличие сауны / бани нет
Гараж нет
Форма дома Прямоугольник
Тип крыши Двускатная
Размер дома 19,4 м × 10 м
Стиль дома Барнхаус, Модульный дом
Срок сборки 50 дней под ключ
2 962 400 руб. под ключ дачный дом
4 379 200 руб. под ключ для ПМЖ
Барнхаус Tilava позволяет компактно разместить все необходимое для комфортного проживания семьи до 4-х человек. 2 спальни, отдельная прихожая, большой санузел, кухня, светлая гостиная с панорамным остеклением и огромная веранда, удовлетворят потребности любой семьи. В разных вариантах планировок расположение прихожей предусмотрено с разных сторон дома.
Стоимость строительства дома по проекту «Проект барнхауса Tilava» для дома постоянного проживания (ПМЖ)
ЗАКРЫТЫЙ КОНТУР. ВНЕШНЯЯ ОТДЕЛКА
Каркас дома без утепления.
Строительство можно продолжить позднее.
Строительство можно продолжить позднее.
- Перепланировка дома
- Полный проект дома
- Доставка до 50км от МКАД
- Обеспечение туалетом и бытовкой на объекте
- Свайно-винтовой фундамент
- Обвязка:Гидроизоляция по фундаменту, устройство нижней обвязки из антисептированного пакета досок 200x50x3.
- Каркас:Каркас дома из сухой строганой доски камерной сушки: силовой каркас, хедеры, ригеля, обвязки каркаса, стропильная система, перекрытия, перегородки.
- Окна, дверь:Окна/балконные двери белые металлопластиковые с двухкамерным стеклопакетом. Профиль Brusbox. Входная дверь металлическая с теплоразрывом.
- Кровельная система:Кровельное покрытие фальцевая кровля/металлочерепица с комплектом фасонных изделий, гидро ветрозащитной мембраной, обрешетка, контр обрешетка
- Внешняя отделка:Доска / Цементно-стружечная плита (ЦСП), оконные отливы, наличники окон и дверей.
- Водосточная система
- Утепление дома:Теплоизоляция полов и потолков утеплителем Rockwool 250 мм, теплоизоляция стен утеплителем Rockwool 200 мм, шумоизоляция перегородок Rockwool 100мм. Пароизоляционные мембраны проклеиваются, ветро-влагозащитные мембраны монтируются внахлест
- Напольное покрытие:Фанера ФК, ЦСП в мокрых зонах
- Внутренняя отделка:Внутренняя отделка стен и потолков гипсокартоном. Межкомнатные двери.
- Напольное покрытие террас, балконов:Устройстро полов террас и балконов выполняется из доски 25 мм
- Ограждения террас, балконов:Устройство ограждений террас и балконов по проекту
Цена: 2 447 200 руб.
ТЕПЛЫЙ КОНТУР
Каркас дома с утеплением.
Можно приступать к внутренней отделке дома.
Можно приступать к внутренней отделке дома.
- Перепланировка дома
- Полный проект дома
- Доставка до 50км от МКАД
- Обеспечение туалетом и бытовкой на объекте
- Свайно-винтовой фундамент
- Обвязка:Гидроизоляция по фундаменту, устройство нижней обвязки из антисептированного пакета досок 200x50x3.
- Каркас:Каркас дома из сухой строганой доски камерной сушки: силовой каркас, хедеры, ригеля, обвязки каркаса, стропильная система, перекрытия, перегородки.
- Окна, дверь:Окна/балконные двери белые металлопластиковые с двухкамерным стеклопакетом. Профиль Brusbox. Входная дверь металлическая с теплоразрывом.
- Кровельная система:Кровельное покрытие фальцевая кровля/металлочерепица с комплектом фасонных изделий, гидро ветрозащитной мембраной, обрешетка, контр обрешетка
- Внешняя отделка:Доска / Цементно-стружечная плита (ЦСП), оконные отливы, наличники окон и дверей.
- Водосточная система
- Утепление дома:Теплоизоляция полов и потолков утеплителем Rockwool 250 мм, теплоизоляция стен утеплителем Rockwool 200 мм, шумоизоляция перегородок Rockwool 100мм. Пароизоляционные мембраны проклеиваются, ветро-влагозащитные мембраны монтируются внахлест
- Напольное покрытие:Фанера ФК, ЦСП в мокрых зонах
- Внутренняя отделка:Внутренняя отделка стен и потолков гипсокартоном. Межкомнатные двери.
- Напольное покрытие террас, балконов:Устройстро полов террас и балконов выполняется из доски 25 мм
- Ограждения террас, балконов:Устройство ограждений террас и балконов по проекту
Цена: 3 220 000 руб.
ВНУТРЕННЯЯ ОТДЕЛКА
Готовый дом.
Можно приступать к установке инженерных систем и чистовой отделке.
Можно приступать к установке инженерных систем и чистовой отделке.
- Перепланировка дома
- Полный проект дома
- Доставка до 50км от МКАД
- Обеспечение туалетом и бытовкой на объекте
- Свайно-винтовой фундамент
- Обвязка:Гидроизоляция по фундаменту, устройство нижней обвязки из антисептированного пакета досок 200x50x3.
- Каркас:Каркас дома из сухой строганой доски камерной сушки: силовой каркас, хедеры, ригеля, обвязки каркаса, стропильная система, перекрытия, перегородки.
- Окна, дверь:Окна/балконные двери белые металлопластиковые с двухкамерным стеклопакетом. Профиль Brusbox. Входная дверь металлическая с теплоразрывом.
- Кровельная система:Кровельное покрытие фальцевая кровля/металлочерепица с комплектом фасонных изделий, гидро ветрозащитной мембраной, обрешетка, контр обрешетка
- Внешняя отделка:Доска / Цементно-стружечная плита (ЦСП), оконные отливы, наличники окон и дверей.
- Водосточная система
- Утепление дома:Теплоизоляция полов и потолков утеплителем Rockwool 250 мм, теплоизоляция стен утеплителем Rockwool 200 мм, шумоизоляция перегородок Rockwool 100мм. Пароизоляционные мембраны проклеиваются, ветро-влагозащитные мембраны монтируются внахлест
- Напольное покрытие:Фанера ФК, ЦСП в мокрых зонах
- Внутренняя отделка:Внутренняя отделка стен и потолков гипсокартоном. Межкомнатные двери.
- Напольное покрытие террас, балконов:Устройстро полов террас и балконов выполняется из доски 25 мм
- Ограждения террас, балконов:Устройство ограждений террас и балконов по проекту
Цена: 4 379 200 руб.
Проекты той же площади
Проекты в стиле: Барнхаус, Модульный дом
Архитектурный раздел
- Ведомость чертежей
- Общие указания
- Маркировочные планы этажей дома
- План кровли
- Кладочные планы этажей
- Спецификация перемычек
- Разрезы
- Спецификация заполнения проемов
- Экспликация полов
- Цокольный узел
- Кровельный узел
- Развертки вентиляционных шахт
- Сечения вентиляционных шахт
- Фасады
- Объемные виды дома или коттеджа
Конструктивный раздел*
- Ведомость чертежей
- Общие указания для строительства
- План котлована (траншей)
- Фундаменты, схема расположения
- Фундаменты, общий вид
- Фундаменты, схема расположения плитной части
- Фундаменты, схема расположения стеновой части
- Фундаменты, сечения дома
- Спецификация элементов фундамента
- Междуэтажное перекрытие коттеджа или дома
- Схема элементов перекрытия
- Схема расположения монолитного пояса
- Схема расположения чердачных балок
- Схема расположения стропил (для скатных кровель)
- Спецификация элементов стропил для строительства (для скатных кровель)
- Общий вид стропильной системы (для скатных кровель)
- Внутридомовая лестница (если разработана в проекте)
- Схема устройства входных групп
* - состав чертежей может варьировать в зависимости от типа применяемого фундамента и прочих конструктивных решений.
