Проект барнхауса Musta
Общая площадь 160
Технология Каркасная
Количество этажей 1,5
Количество спален 3
Количество с/у 3
Наличие сауны / бани нет
Гараж да
Форма дома Прямоугольник
Тип крыши Двускатная
Стиль дома Барнхаус
Срок сборки 120 дней под ключ
5 152 000 руб. под ключ дачный дом
7 616 000 руб. под ключ для ПМЖ
Дом Musta выполнен полностью в черном цвете, поэтому выделяется как единое целое среди ландшафта. Однако при приближении к зданию постепенно проявляются различные текстуры: вертикальные деревянные планки, горизонтальные раздвижные солнцезащитные жалюзи и волны гофрированных листов стали на крыше выполнены в одной цветовой палитре, но из-за различий в текстуре и ориентации солнечный свет поглощается или отражается по-разному.
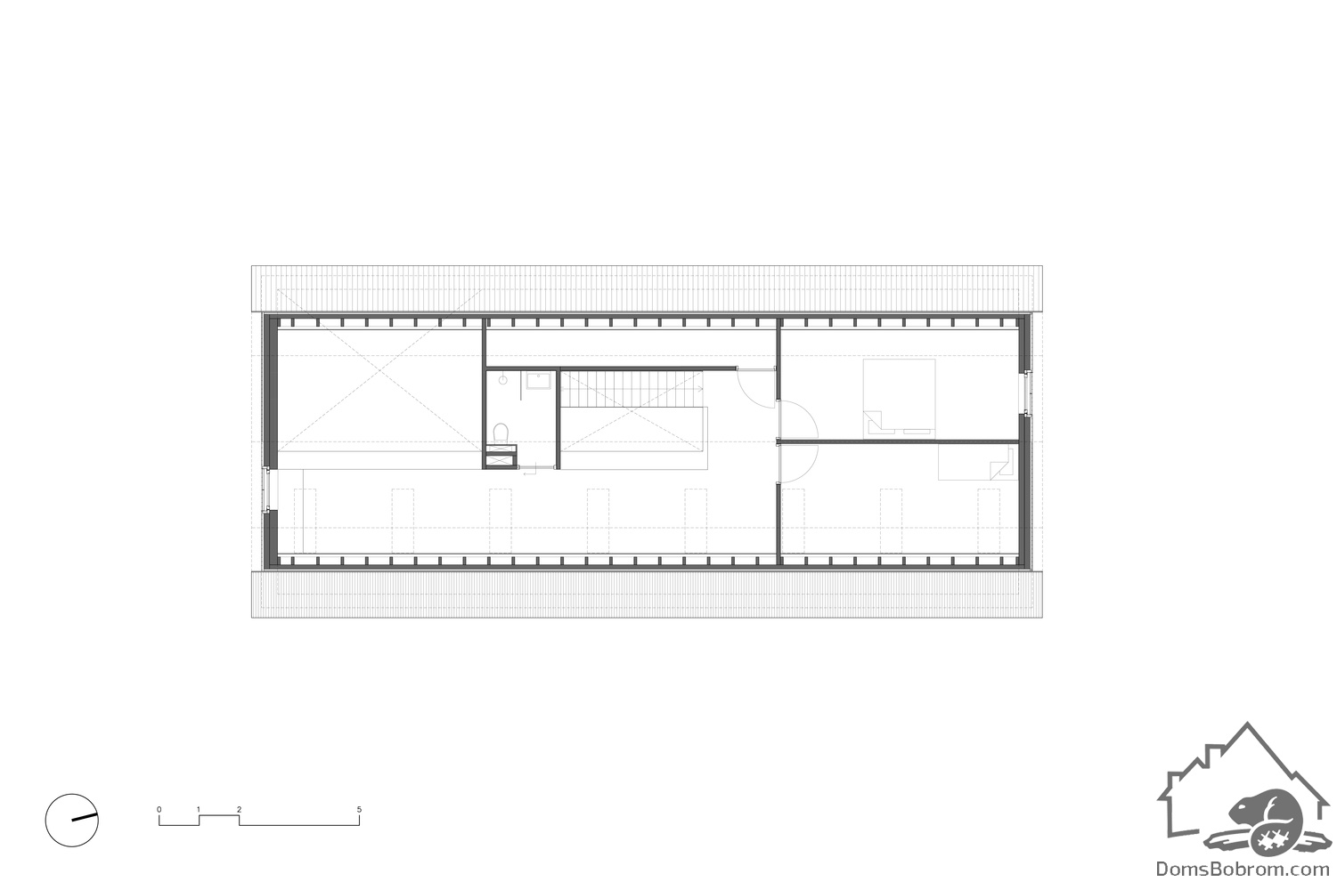
В доме Musta есть крытая терраса, которая напрямую соединяется с прилегающей кухней. На первом этаже расположены две спальни с ванной комнатой, кладовая и рабочая зона. Большие пустоты над лестницей и кухней позволяют утреннему свету, который проникает через световые люки на восточном фасаде, проникать в самое сердце дома. Пустоты придают дому ощущение пространства с обзором до самой крыши.
Дом спроектирован архитектором ВЕНИНК ХОЛЬТКАМП, фото ТИМ ВАН ДЕ ВЕЛЬДЕ. Разработаем проект, вдохновившись его творением.
Стоимость строительства дома по проекту «Проект барнхауса Musta» для дома постоянного проживания (ПМЖ)
ЗАКРЫТЫЙ КОНТУР. ВНЕШНЯЯ ОТДЕЛКА
Строительство можно продолжить позднее.
- Перепланировка дома
- Полный проект дома
- Доставка до 50км от МКАД
- Обеспечение туалетом и бытовкой на объекте
- Свайно-винтовой фундамент
- Обвязка:Гидроизоляция по фундаменту, устройство нижней обвязки из антисептированного пакета досок 200x50x3.
- Каркас:Каркас дома из сухой строганой доски камерной сушки: силовой каркас, хедеры, ригеля, обвязки каркаса, стропильная система, перекрытия, перегородки.
- Окна, дверь:Окна/балконные двери белые металлопластиковые с двухкамерным стеклопакетом. Профиль Brusbox. Входная дверь металлическая с теплоразрывом.
- Кровельная система:Кровельное покрытие фальцевая кровля/металлочерепица с комплектом фасонных изделий, гидро ветрозащитной мембраной, обрешетка, контр обрешетка
- Внешняя отделка:Доска / Цементно-стружечная плита (ЦСП), оконные отливы, наличники окон и дверей.
- Водосточная система
- Утепление дома:Теплоизоляция полов и потолков утеплителем Rockwool 250 мм, теплоизоляция стен утеплителем Rockwool 200 мм, шумоизоляция перегородок Rockwool 100мм. Пароизоляционные мембраны проклеиваются, ветро-влагозащитные мембраны монтируются внахлест
- Напольное покрытие:Фанера ФК, ЦСП в мокрых зонах
- Внутренняя отделка:Внутренняя отделка стен и потолков гипсокартоном. Межкомнатные двери.
- Напольное покрытие террас, балконов:Устройстро полов террас и балконов выполняется из доски 25 мм
- Ограждения террас, балконов:Устройство ограждений террас и балконов по проекту
ТЕПЛЫЙ КОНТУР
Можно приступать к внутренней отделке дома.
- Перепланировка дома
- Полный проект дома
- Доставка до 50км от МКАД
- Обеспечение туалетом и бытовкой на объекте
- Свайно-винтовой фундамент
- Обвязка:Гидроизоляция по фундаменту, устройство нижней обвязки из антисептированного пакета досок 200x50x3.
- Каркас:Каркас дома из сухой строганой доски камерной сушки: силовой каркас, хедеры, ригеля, обвязки каркаса, стропильная система, перекрытия, перегородки.
- Окна, дверь:Окна/балконные двери белые металлопластиковые с двухкамерным стеклопакетом. Профиль Brusbox. Входная дверь металлическая с теплоразрывом.
- Кровельная система:Кровельное покрытие фальцевая кровля/металлочерепица с комплектом фасонных изделий, гидро ветрозащитной мембраной, обрешетка, контр обрешетка
- Внешняя отделка:Доска / Цементно-стружечная плита (ЦСП), оконные отливы, наличники окон и дверей.
- Водосточная система
- Утепление дома:Теплоизоляция полов и потолков утеплителем Rockwool 250 мм, теплоизоляция стен утеплителем Rockwool 200 мм, шумоизоляция перегородок Rockwool 100мм. Пароизоляционные мембраны проклеиваются, ветро-влагозащитные мембраны монтируются внахлест
- Напольное покрытие:Фанера ФК, ЦСП в мокрых зонах
- Внутренняя отделка:Внутренняя отделка стен и потолков гипсокартоном. Межкомнатные двери.
- Напольное покрытие террас, балконов:Устройстро полов террас и балконов выполняется из доски 25 мм
- Ограждения террас, балконов:Устройство ограждений террас и балконов по проекту
ВНУТРЕННЯЯ ОТДЕЛКА
Можно приступать к установке инженерных систем и чистовой отделке.
- Перепланировка дома
- Полный проект дома
- Доставка до 50км от МКАД
- Обеспечение туалетом и бытовкой на объекте
- Свайно-винтовой фундамент
- Обвязка:Гидроизоляция по фундаменту, устройство нижней обвязки из антисептированного пакета досок 200x50x3.
- Каркас:Каркас дома из сухой строганой доски камерной сушки: силовой каркас, хедеры, ригеля, обвязки каркаса, стропильная система, перекрытия, перегородки.
- Окна, дверь:Окна/балконные двери белые металлопластиковые с двухкамерным стеклопакетом. Профиль Brusbox. Входная дверь металлическая с теплоразрывом.
- Кровельная система:Кровельное покрытие фальцевая кровля/металлочерепица с комплектом фасонных изделий, гидро ветрозащитной мембраной, обрешетка, контр обрешетка
- Внешняя отделка:Доска / Цементно-стружечная плита (ЦСП), оконные отливы, наличники окон и дверей.
- Водосточная система
- Утепление дома:Теплоизоляция полов и потолков утеплителем Rockwool 250 мм, теплоизоляция стен утеплителем Rockwool 200 мм, шумоизоляция перегородок Rockwool 100мм. Пароизоляционные мембраны проклеиваются, ветро-влагозащитные мембраны монтируются внахлест
- Напольное покрытие:Фанера ФК, ЦСП в мокрых зонах
- Внутренняя отделка:Внутренняя отделка стен и потолков гипсокартоном. Межкомнатные двери.
- Напольное покрытие террас, балконов:Устройстро полов террас и балконов выполняется из доски 25 мм
- Ограждения террас, балконов:Устройство ограждений террас и балконов по проекту
Проекты той же площади
Проекты в стиле: Барнхаус
Архитектурный раздел
- Ведомость чертежей
- Общие указания
- Маркировочные планы этажей дома
- План кровли
- Кладочные планы этажей
- Спецификация перемычек
- Разрезы
- Спецификация заполнения проемов
- Экспликация полов
- Цокольный узел
- Кровельный узел
- Развертки вентиляционных шахт
- Сечения вентиляционных шахт
- Фасады
- Объемные виды дома или коттеджа
Конструктивный раздел*
- Ведомость чертежей
- Общие указания для строительства
- План котлована (траншей)
- Фундаменты, схема расположения
- Фундаменты, общий вид
- Фундаменты, схема расположения плитной части
- Фундаменты, схема расположения стеновой части
- Фундаменты, сечения дома
- Спецификация элементов фундамента
- Междуэтажное перекрытие коттеджа или дома
- Схема элементов перекрытия
- Схема расположения монолитного пояса
- Схема расположения чердачных балок
- Схема расположения стропил (для скатных кровель)
- Спецификация элементов стропил для строительства (для скатных кровель)
- Общий вид стропильной системы (для скатных кровель)
- Внутридомовая лестница (если разработана в проекте)
- Схема устройства входных групп
